| NIVEAU | PIÈCE | SURFACE |
Loyer Charges Comprises 955 € par mois *
- * Dont provisions sur charges : 144 € par mois
(régularisation annuelle) - Zone soumise à encadrement des loyers
Le loyer de référence majoré (loyer de base à ne pas dépasser) est de 0€
Dont Loyer de base (hors charge) : 811€
Dont complément de loyer : 0€ - Honoraires charge locataire : 823 € TTC
- Dont honoraires état des lieux : 190 € TTC
- Dépôt de garantie : 811 €
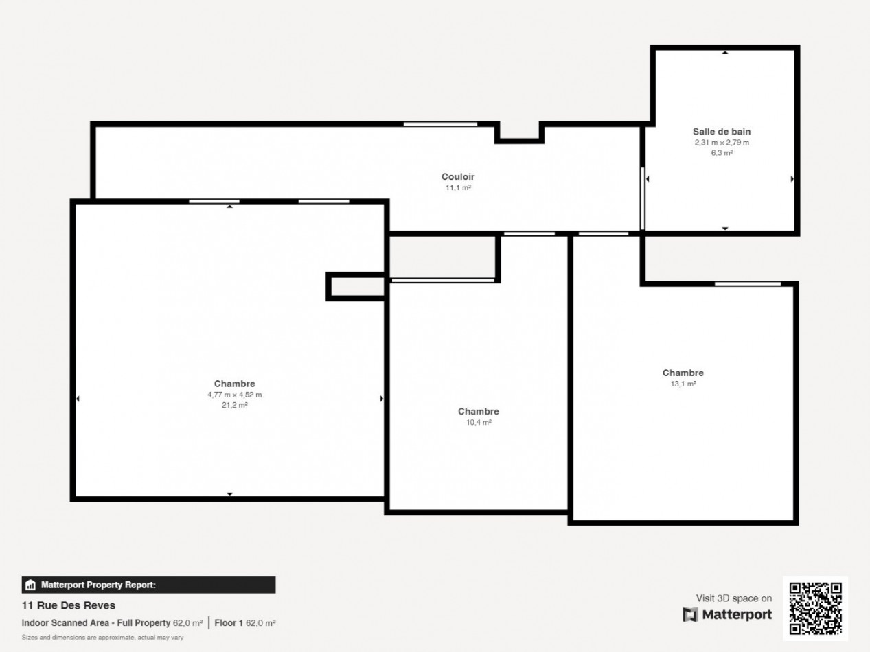
Appartement
MONTPELLIER (34000)
Ref 343912200
Ref 957
- 63 m²
- 3 pièce(s)
- 2 chambre(s)
- NC
Beau T3 de 63m² situé dans bel immeuble quartier ARCEAUX.
Comprenant une pièce principale avec cuisine ouverte, deux chambres,une salle de bain avec WC. Loyer: 955.00 €* Dont provision sur charges : 144 € par mois (régularisation annuelle)
Honoraires charge locataire : 823 € TTC Frais de visite / dossier / rédaction du bail 636 € TTC
dont honoraires état des lieux : 190 € TTC
Dépôt de garantie : 811 €
Les informations sur les risques auxquels ce bien est exposé sont disponibles sur le site Géorisques
Ce bien ne figure plus au catalogue car il a été loué.
Diagnostics de performance énergétique

Montant estimé des dépenses annuelles d'énergie pour un usage standard: entre 560,00€ et 780,00€ par an.
Prix moyen des énergies indexés au 04/06/2024 (abonnement compris)
Voir le descriptif des pièces
À proximité de ce bien ...
Plus d'informations sur ce bien
Découvrez nos biens similaires ...
ou
Envoyer
cette annonce à un ami
cette annonce à un ami
Votre E-mail a bien été envoyé.
Une erreur s’est produite lors de l’envoi de votre e-mail.
Veuillez réessayer à nouveau
Veuillez réessayer à nouveau




















